Amay – Maison de la Poésie d'Amay ,

Désignation d'une équipe d'auteurs de projet en vue de l’étude et du suivi de l’exécution des travaux de rénovation et de transformation du bâtiment de la Maison de la Poésie d'Amay

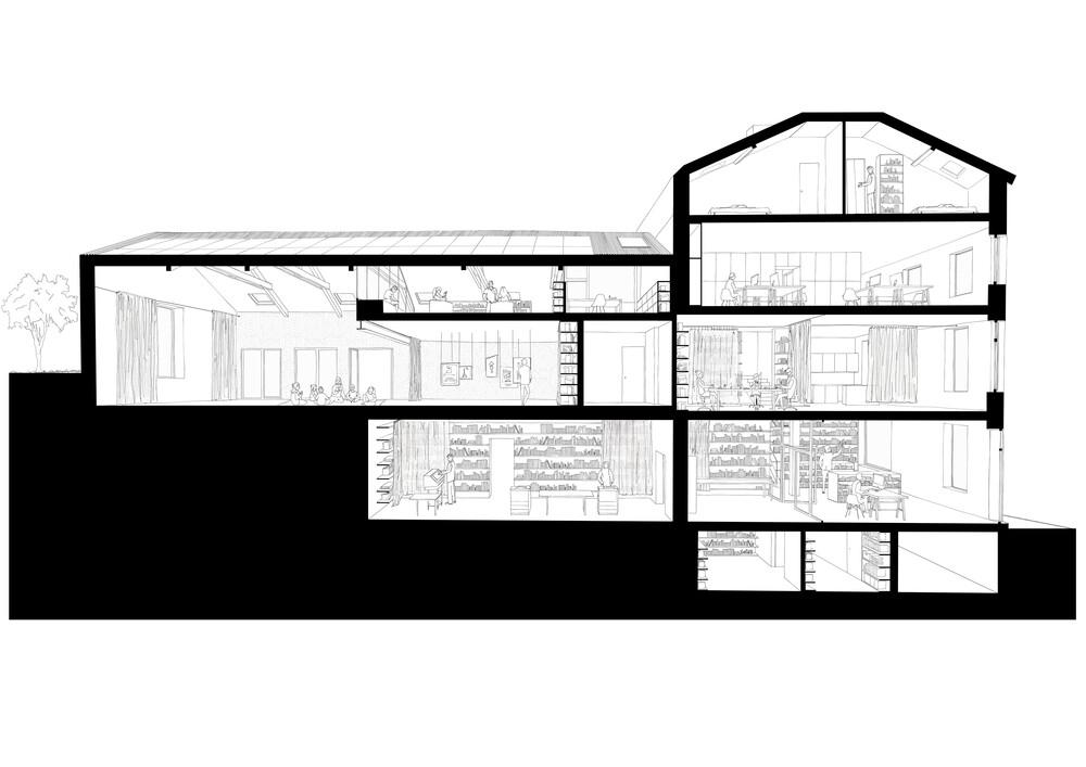
Les services concernent un projet global visant le bâtiment abritant les activités de la Maison de la Poésie d’Amay situé 8, Place des Cloîtres à 4540 Amay. Il s’agit d’un bâtiment ayant une surface-plancher totale actuelle d’environ 722m2 qui appartient à la Maison de la Poésie ASBL. Il accueille une multitude d’activités (maison d’édition, centre d’expression et de créativité, résidence d’auteurs, ateliers, stages, soirées littéraires, etc.) proposées par l’ASBL. Le bâtiment historique est composé d’une partie principale de 4 niveaux et d’une annexe attenante connectée au second niveau (terrain en pente) : le "Théâtre de Utopies", découvert lors de la rénovation en 1995 et actuellement insalubre.

A minima, l'ensemble du bâtiment nécessite une rénovation énergétique (isolation de l’enveloppe et rénovation des installations techniques) et une mise en conformité. Ces travaux prétendent à une subvention dans le cadre du plan de relance européen et doivent être réceptionnés pour juin 2026.

En vertu de l’obtention éventuelle de financements supplémentaires restant à confirmer le projet devra :

- en priorité viabiliser le "Théâtre des Utopies" et par là même améliorer l’accessibilité générale du site aux personnes à mobilité réduite en rénovant les circulations verticales et en intégrant un ascenseur, et répondre aux exigences en matière de sécurité incendie liées à cette nouvelle occupation.

- en outre, si les finances le permettent, les utilisateurs souhaitent également optimiser la surface-plancher du bâtiment pour pouvoir accueillir les activités de l’imprimerie, actuellement implantées dans un bâtiment d’Ombret et repenser et réorganiser l’aménagement de l’ensemble du bâtiment pour développer leurs activités. Il s’agira également de répondre aux exigences en matière de sécurité incendie liées à cette nouvelle occupation.

Calendrier

Attribution du marché

Jury

PourMadame, MonsieurQualité
l'adjudicateur (et ses bénéficiaires) - Régie communale autonome incl. Ville de Hannut et Wallonie-Bruxelles Enseignement Pasacal Dassy Président(e) du jury
Président - RCA Hannut
Martin Jamar Échevin des sports - Ville de Hannut
Debora TILLEMANS Architecte - Directrice générale adjointe de la DGBL – FWB-WBE
Christophe Mahieu Directeur de l’Athénée Royal de Hannut - FWB-WBE